Design Build

HVAC Design Build and Design Assist Services in Colorado Springs, CO

From the beginning to the end of all Design Build or Design Assist Projects, we manage the mechanical systems closely. Our trained Estimators and Project Managers understand and utilize the following processes:
SCHEMATIC DESIGNDESIGN DEVELOPMENTCONSTRUCTION DOCUMENTSCONSTRUCTION PERMITTINGCOMMISSION/TRAIN OWNER TURNOVER
ScopeScope ControlGMP ControlValue EngineeringCost Control
How Big? (Sqr Ft)Block Loads (BTU’s)Zoning Requirements (More or Less Zones)Manpower Material & Equipment (Scheduling and Planning)Zero Punch List Educating Owners
(What System Works Best?) (Eliminate Waste)

HVAC Solutions in Colorado Springs, CO can help with Design Build and Design Assist Services.

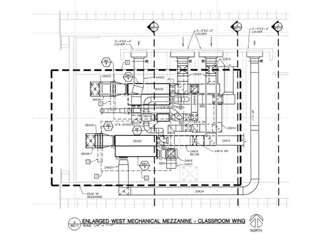
​Below are design drawing examples of a “LEED Gold” Design Build Project by HVAC Solutions, Inc.:
Design / Build
Design / Build